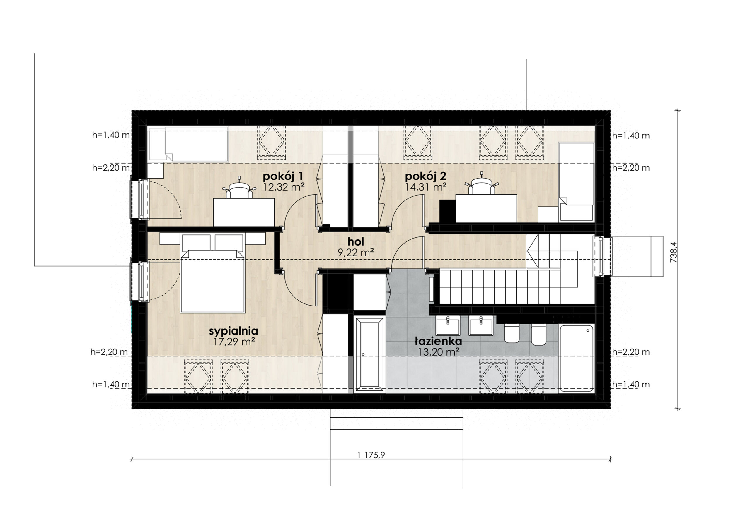
Tatrzański 03 | 128,92 m2 | 1,5 piętra

 
 

Szczegóły:

Powierzchnia podłóg:

128.92 m2

Powierzchnia użytkowa:

117,48 m2

Powierzchnia zabudowy:

84,51 m2

Wysokość budynku:

8,70 m

Kubatura budynku:

601,00

Typ dachu:

dwuspadowy

Kąt nachylenia dachu:

45°

Wymiary budynku:

11,759 x 7,384 m

Minimalne wymiary działki:

19,76 x 15,38 m

Materiał konstrukcyjny:

drewno KVH

Stan deweloperski:

1. Konstrukcja budynku (ściany zewnętrzne, nośne, strop, więźba dachowa) w technologii WCH wraz z montażem

2.  Pokrycie dachowe wraz z orynnowaniem

3. Stolarka okienna PCV

4. Drzwi wejściowe

5. Elewacja tynk gładki zamiennie deska elewacyjna, modrzew

6. Instalacja wod/kan

7. Instalacja elektryczna

8. Instalacja ogrzewania podłogowego

9. Izolacja ścian wewnętrzncyh, skosów, stropu

10. Wykonanie ścian działowych

11. Płytowanie GK wewnątrz budynku

12. Wylewka betonowa z izolacją

Stan deweloperski już od 498 400,00 zł